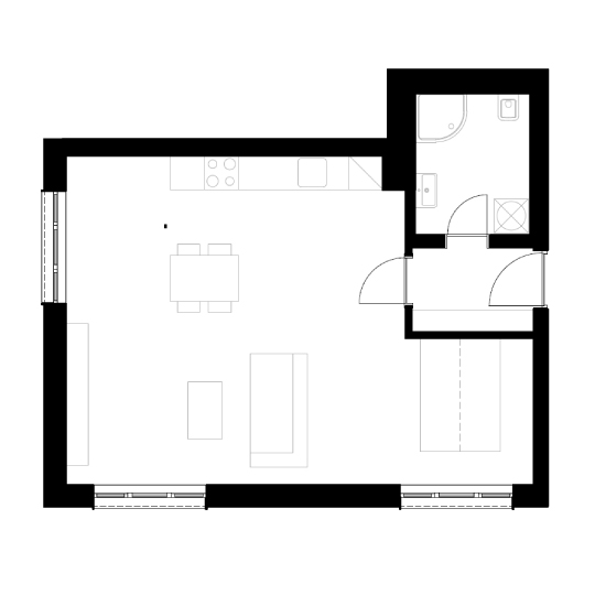
Byt 06.B50b

k dispozici

Cena: 7 070 000 Kč
NP: 6
Zádveří3,20m²
Obývací pokoj + KK40,30m²
Koupelna, WC5,30m²

CELKEM48,80m²
Půdorys

Financování

na míru

Chcete si splnit sen o vlastním bydlení, ale nevíte, jak na financování? Žádný problém! Spolupracujeme se zkušeným hypotečním poradcem, který vám pomůže najít to nejlepší řešení na míru. Stačí nás kontaktovat a společně pro vás připravíme ideální financování.

 

Kontaktujte nás a získejte podrobné informace o projektu.